标签归档:Townhouse

Listing of townhouses

【澳瑞达集团瑞敏房地产投资】墨尔本传统富人区–South Yarra 奢华联排别墅不容错过!

 

区域介绍:

South Yarra 区面积大约有5平方公里,人口17,000。其中本土出生的澳洲人占大多数,海外移民主要以欧洲为主,特别是英国人。

  该区的平均个人每周收入为$500-$999澳币,14%以上的家庭拥有超过$1500澳币的周薪,比墨尔本平均收入高出8%,是墨尔本传统的富人区。

  South Yarra拥有全澳闻名百年历史的学校:墨尔本高中(Melbourne High School),以及著名女校Melbourne Girls Grammar School。

  South Yarra公共交通条件优越,同时拥有两个火车站。一个是South Yarra Railway Station,另一个是Hawksburn station,提供区域东部的交通运输。

项目简介

该三层联排别墅位于South Yarra的Toorak Road 上。三间带有私人卫浴的卧室+ 一间书房,配有内部电梯一部,两个地下车库,开放式厨房设计。

将于2016年11月建成!

  • 每栋别墅都有私人顶楼阳台!

周边学校

  • Melbourne High

  • Melbourne Girls Grammar

  • other high-quality public schools and private schools

  • 周边商店,餐馆,咖啡店,精品店等琳琅满目。

  • 数分钟走到Chapel Street;

  • 10分钟到Vogue Plaza;

  • 邻近Big W 和Woolworth等超市;

  • 开车5分钟可到Prahran Market 和亚洲超市。

  • 5分钟步行到South Yarra train station

周边公园

  • Fawkner Park

  • Royal Botanic Gardens

  • Caroline garden

户型图参考


关注澳瑞达官方微信(AURAY_STAR),我们实时提供最新房产、留学移民、澳洲旅游等资讯及信息!

我们的联系方式:

电话:

+61 452 523 488

Email:

min@auraystar.com.au

微信扫一扫
关注该公众号

【澳瑞达集团瑞敏房地产】Box Hill North聚宝盆,等您开发!!!亲,带批文的嘞!

 

项目开发
澳瑞达为你推荐带批文的绝世好地!该开发项目位于宜居的Box Hill North,土地面积约为994平米,带政府批文及设计图纸(小编寄语:现在在批文难拿的年代,即买即开发8套连排别墅,投资回报率高达40%!)。地段优越,紧邻繁华的Box Hill Central中心,数步可至医院和Tafe。出行、购物极为方便。

区域介绍
Box Hill North 位于墨尔本市中心14公里的东面,坐落于Box Hill 和 Doncaster之间。宁静、绿树成荫的街道遍布了宽敞的别墅。
Box Hill North有很多公园可供休闲或者打球,父母可以带着孩子们在Koonung Creek Trail栈道上骑车兜风,也可以在当地商店(比如Woodhouse Grove)购买一些日常用品或者是食品。晚上还可以到附近的Westfield Doncaster 看电影,或者步行到Box Hill享用美食。
参考图

参考图

参考图

参考图

周边学校
Box Hill North拥有众多学校,其中包括:
Box Hill Institute 1.1km
Box Hill Senior Secondary College 79km
Our Lady of Sion College Secondary 1.02 km
Koonung Secondary College 1.09 km
St Francis Xavier’s Parish Primary School 1.19 km
Berengarra School 1.29 km

周边交通及购物
Box Hill North紧邻Box Hill Central,步行数步可达火车站及电车站。
Box Hill Central 800m
Epworth Hospital 550m
Box Hill Institute 1.1km
Box Hill Hospital 600m
109电车 900m
Box Hill火车站 1.1km
Westfield Shopping Central 3.7km

投资潜力
Box Hill North区2014年第四季度别墅房中位价$1,052,000,公寓房中位价$735,000,2014年房价涨幅24.60%。
小编寄语:如果想要位于宁静郊区的宽敞住宅,而且要地段便捷,那么Box Hill North绝对值得你考虑。
澳瑞达集团
微信号:AURAY_STAR
我们的联系方式:
电话:
+61 452 523 488
Email:
min@auraystar.com.au

微信扫一扫
关注该公众号

【澳瑞达集团瑞敏房地产】Mount Waverley超大面积开发项目,绝无仅有!!!带批文!!!

 

项目开发

该开发项目位于Mount Waverly,土地面积占约2240平方米。可建12套连排别墅,并已获得政府批文以及设计图。
现代连排别墅和单位逐渐涌现,澳瑞达团队认为现在在Mount Waverley开发连排别墅正是时候。快来与我们联系吧。
区域介绍
Mount Waverley位于城市东南部,距离墨尔本市中心16公里。该区广阔宽敞、绿意盎然、交通方便。充斥着不同时代的宽敞住房、学校、购物中心和电影院。
Mount Waverley住房宽敞、学校选择多,家庭是Mount Waverley的主要人口。当地有老年和中年家庭,有些跟子女一起生活,也有部分是年轻人。

Mount Waverley展示质朴宜人的家庭生活。
周末,可以在Riversdale Golf Club打一场高尔夫球;在Pinewood Shopping Centre的Waverley Cinema看一部电影;在风光如画的Damper Creek散步;或在Valley Reserve烧烤。如果大自然不是你的喜好,那么,可以坐巴士到Chadstone逛街购物。
参考图

参考图

参考图

参考图

参考图

周边交通
周围交通便利,乘坐巴士可到Monash大学、Chadstone购物中心。邻近M1高速,直达City。
624巴士 75m
693巴士 578m
742巴士 578m

周边学校
Monash大学 4.9km
Deakin大学 5.3km
Sussex Heights小学 501m
St Mary Magdalen’s 1.4km
Oakleigh小学 1.9km
Huntingdale小学 2.4km
地图

投资潜力
由于紧临南半球最大的购物商场Chadstone Shopping Centre, 并且有通往市中心和Dandenong 方向的高速,有很多的住户都开始入住该区。并且有多所院校坐落于该区和Glen Waverley, 致使Mount Waverley的房价也是一涨再涨。
选择Mount Waverley绝对没有错!

关注澳瑞达官方微信(AURAY_STAR),我们实时提供最新房产、留学移民、澳洲旅游等资讯及信息!

我们的联系方式:

电话:

+61 452 523 488

Email:

min@auraystar.com.au


微信扫一扫
关注该公众号

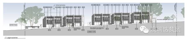
【澳瑞达集团瑞敏房地产投资】开发商福利来了,富人区Kew难得有超大型带政府批文土地!连李嘉诚都涶连三尺,你还在等什么呢!!!

项目开发
澳瑞达现有一开发带批文的项目,土地面积约2019平方米。地理位置绝佳,可造10栋连排别墅。对于房地产开发爱好者来说,绝对是大好机会。请速速与我们联系!
区域介绍
Kew是墨尔本最古老最富有的区之一,距离墨尔本市中心10公里。人们想到Kew,首先想到的是绿树成荫的街道、宏伟住宅。然而,显然这个历史悠久的区远不止所见的这些。
该区以绿树成荫的宽敞街道和众多维多利亚式和爱德华式住宅著称。



享受


Kew区似乎可以一分为二。北面有一些小型的别墅,户主多为享受Willsmere Village休闲咖啡生活的年轻家庭。南面则是一些更庄严的住宅,西面则有同样风景如画的Studley公园。
项目介绍
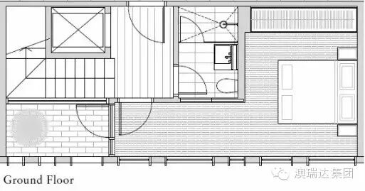
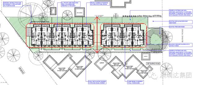
该开发项目可造10栋连排别墅,并且已带政府改建批文及图纸。
参考图纸

参考车位

朝东方向

朝西方向

朝北方向

朝南方向

周边学校

Deepdene Primary School 0.46 km
Genazzano FCJ College 0.61 km
Kew High School 1.08 km
Camberwell Grammar School 1.29 km
Methodist Ladies Colledge 3.2 km
Ruyton Girls School 2.7km
Trinity Grammar School 3km
周围交通

距离109 电车站仅200米,门前更有汽车直通市中心、DEAKIN大学以及华人区Box Hill,出行极为方便。
地理位置

如果您对房产有兴趣,欢迎随时联系我们!

我们的联系方式:

电话:

+61 452 523 488

Email:

min@auraystar.com.au

微信扫一扫
关注该公众号

【澳瑞达集团瑞敏房地产】富裕人生、宽裕生活!Heidelberg多套Townhouse满足你所有需求!!!

区域介绍

Heidelberg是墨尔本东北富有魅力的城区,距离市中心10公里。该区紧邻Templestowe,近几年发展迅速。由于邻近La Trobe大学,越来越多的留学生也促进了学校附近的经济和发展。
火车、电车在这里你都可以享用,并且紧邻高速公路,交通极为方便。无论是驾车去市中心或是华人区BOX HILL都非常方便。
另外,Heidelberg还具备一些内城区少有的特点,那就是该区坐落在两条风格迥异的水道之间,即Yarra River和Darebin Creek。这营造出了一种东边半丛林西边郊野的感觉,更是向往田园生活人士的理想选择。

项目概况
十栋联排别墅坐落于墨尔本东北区的Heidelberg,别墅都配备独立的车房以及前后阳台。交通便利, 步行距离到火车 站,只需 20 分钟火车即可抵达墨尔本的市中心。 附近的公共基础及配套设施非常完善,如 Austin医院 ,Anytime Fitness健身房,不同风格的餐馆以及一系列大型超市(Coles&Woolworth)和 Warringal购物中心。

社区配套&文化背景
无论您选择在墨尔本居住
或者投资,Heidelberg依其完善
的社区配套和教育体系都是你独一无二的选择。各式各样的小咖啡厅和餐馆就在您的附近,是你在一天忙碌的工作后放松的好地方。
Heidelberg各色各样的餐馆:
• Leo’s Fine Food & Wine
• Vyve Cafe & Restaurant
• Barklys Hotel
• Bomba Struzzichini e Apertivi.
• Momoko Oko Sushi
• Café Matto
• Tarin Thai
休闲娱乐
美酒佳肴
便利交通购物医疗及娱乐设施

Heidelberg火车站、大型购物中心及超市、学校、公园、医院、饭店、健身房等配套设施一应俱全。
1. 完善的医疗
Austin Hospital 是墨尔本最著名的公立医院之一,也是墨尔本东区最大的公立医院距离此项目仅800米左右。
2. 购物方便
靠近Warringal Shopping Center 和 North Landing Shopping Center 购物中心及澳洲最大的超市Coles,商品琳琅满目。
3. 环境怡人
出门不到200米就是澳洲著名的De Winto公园,步行距离到Heidelberg 公园及高尔夫球场。
4. 交通便利
出门500米不到便是汽车站和Heidelberg火车站。

高质量的建筑材料、完美的采光及通风、通透明净、安静舒适。

Heidelberg Townhouses展示了一种生态建筑的形态与趋势,融合天然木材、玻璃及砖。设计自然大方典雅。
优美现代的设计、优质的用材和现代工艺成为了Heidelberg Townhouses项目建造的三大标准。
高质量的用材用料:
SMEG烤箱、油烟机、洗碗机及其他厨房配套设施;
中央空调及暖气;
40mm大理石Benchtop
一层户型图

二层户型图

一层户型图

二层户型图

一层户型图

二层户型图

一层户型图

二层户型图

周边教育
Heidelberg Viewbank学院成立于 1994年。该高中是全墨尔本公立学校排名前十位的学校,为学生提供良好的教育。 还有众多名校如La Trobe大学以及著名的Ivanhoe GrammerSchool。

小编点评:

【汇率4.5,利率4.5%,机不可失!时不再来!抢占先机,便可抢先拥有你最中意的楼层和户型!不要再犹豫!今天就来电预定吧!】

澳瑞达集团
微信号:AURAY_STAR
我们的联系方式:
电话:
+61 452 523 488
Email:
min@auraystar.com.au

微信扫一扫
关注该公众号

【澳瑞达集团瑞敏房地产投资】小编在这儿给开发商们发福利啦!Doncaster School Zone!绝佳地段!

 

项目开发

我们澳瑞达(微信号:Auray_Star),现有一开发带批文的项目,如你是对开发有兴趣的朋友可直接与我们联系。

联系方式:+61 3 8394 4694;+61 452 523 488

Email:min@auraystar.com.au

区域介绍-Doncaster

在澳大利亚地图上,有一条龙形山脉,从昆山兰一直延伸到维多利亚的Doncaster去,而Doncaster更是被当地华裔居民称之为“龙头”,被认为是风水最好的地区之一。Doncaster的风水特别好,它处在龙头的位置,龙身一直延伸到Box Hill等地,按照风水原理,有龙头的地方就代表着力量和繁荣,难怪它深受亚洲人士的喜爱。

同时,Doncaster位于墨尔本经济繁华的东区,距离墨尔本市中心15公里,周围交通、购物、休闲娱乐、医疗、教育等基础设施一应俱全,是一个既可以享受宁静休闲生活又可以享受都市便利生活的最佳选择。

项目介绍

该开发项目可建三幢连排别墅(已获批文及设计图纸),对于房地产开发爱好者来说,绝对是大好机会啊,请速速与我们联系,机不可失!!!

澳瑞达(微信号:Auray_Star)

联系方式:+61 3 8394 4694;+61 452 523 488

Email:min@auraystar.com.au

户型设计图:

第一层设计图:

第二层设计图:

地理位置

该开发项目位于墨尔本的正东方向,是距离墨尔本市中心18公里,开车进入CBD大约15分钟。这个区距离墨尔本有名的华人区Boxhill只有4公里,开车大约5分钟就能到,那里能够买到华人的日常生活必须品以及中国各地具有特色的中国地方美食。同时,这个区毗邻墨尔本主要的交通干道,Eastern Freeway交通十分便利。

学校

该开发项目位于Doncaster中学校区内,更有Brralee Primary School 、Doncaster Primary School等众多优秀公校围绕。

休闲娱乐

该开发项目邻近Westfield 大型购物中心,附近的Earm Park 是一个平时散步锻炼身体的好去处,在这个区还有特别漂亮的 Eastern Golf高尔夫球场。在Eastern Golf 里您还有可以选择私人教练和适合自己的课程进行学习。是一个放松心情娱乐的好去处。同时这个区里还有休闲中心,里面不仅锻炼身体,还有适合女士的瑜伽等修身课程,以及室内游泳馆,绝对是锻炼爱好者的好去处。毗邻这个区的Boxhill North还有网球俱乐部。除了休闲娱乐,这个区还有一个对外开放的艺术图书馆,也是您查阅资料和学习的好去处。

如果您对房产有兴趣,欢迎随时联系我们!

我们的联系方式:

电话:

+61 452 523 488

Email:

min@auraystar.com.au

微信扫一扫
关注该公众号

【澳瑞达集团瑞敏房地产】Mila独立别墅,让你尽享空间与隐私!–Glen Iris

项目简介:

该项目享有时尚与完美的设计手法,拥有别具一格的布置格调,距离墨尔本市中心仅有9.7公里!
拥有墨尔本排名前十的中小学校,有便捷的交通, 以及墨尔本特色的餐馆、咖啡店以及商铺,让你生活娱乐多姿多彩!

别墅区前部紧邻Malvern Road,总共设计建造有13栋联排别墅,分别设计有两室、三室、四室户型,宽阔的生活空间,高品质的木地板搭配舒适的冷暖气,让您家庭成员都能在温暖的家中,身心获得放松。

继续阅读【澳瑞达集团瑞敏房地产】Mila独立别墅,让你尽享空间与隐私!–Glen Iris

【瑞敏房地产投资公司】Mount Albert 优质校区房源新上市,亲们抓紧了!

项目简介

Mont Albert位于距离墨尔本12公里处的东面, 附近有着优秀的小学,租金也较为乐观,居住此区的人学历均比较高。住宅占据令人艳羡的位置,生活设施齐全,区内绿树成荫,环境优美,是墨尔本的传统好区之一。周边有众多商铺和餐馆,以及Mont Albert Primary School,公园绿地,还可便捷地前往BoxHill和Doncaster区。

整体经过气派的装修,即使眼光最为敏锐的购买者也会被它深深吸引!尽享娱乐生活的绝佳之处!
继续阅读【瑞敏房地产投资公司】Mount Albert 优质校区房源新上市,亲们抓紧了!

【瑞敏房地产投资公司】隆重推出Chadstone别墅,只剩两套了!倒计时15天,节省近20万人民币!来买我吧?!!

小编寄语:

昨天广告刚刚放出来就卖掉一套!!果然好房不等人啊!现在只剩unit 2 和unit 3两套户型供大家选择了,都是好户型!快来选自己喜欢的那个吧!看看谁会是最后两个幸运儿!

项目简介

该项目位于 Chadstone最佳地段里的安静街道。仅仅3套别墅,抓紧机会,好房就是你的!完美良机,不容错过,自住或投资,赶快行动,拥有这个炙手可热的房产吧!

豪华设计的独立别墅 Uint 1四房两卫两厕。联体别墅Uint 2 三房两卫一学习房两厕,Uint 3 四房三卫四厠。

三套房均为南北对流,拥有超级方正实用的户型给您呈现阳光充沛的视野,卧室、功能完备的厨房、独立式的洗衣房及浴室给您提供不一样的享受。

现代化厨房配有石料厨台和不锈钢的厨具,燃气暖气,美丽的前后花园,本地的各种商铺、学校也是应有尽有。地理位置优越,同时快速可上monash高速公路直通CBD。 继续阅读【瑞敏房地产投资公司】隆重推出Chadstone别墅,只剩两套了!倒计时15天,节省近20万人民币!来买我吧?!!

【澳瑞达集团瑞敏房地产投资公司】墨尔本东南区联排别墅Chapel Greens火热销售中

项目简介

墨尔本东南区中心地带联排别墅ChapelGreens 位于Keysborough区,精心的设计,高质量的室内装修是您不可多得的选择。位于M3高速与海滩之间的优越地理位置,让ChapelGreens兼得高速的便捷和海滩的浪漫。更是集医疗、休闲、娱乐、购物等便利设施于一体,满足生活各个方面的需求。这里周边遍布多家店铺、购物中心、学校、交通运输、公园、休闲娱乐设施和海滩。公交车站、电车和直达CBD的高速公路都环绕在周边,出行便利。好房子不用多说,看看就知道!


继续阅读【澳瑞达集团瑞敏房地产投资公司】墨尔本东南区联排别墅Chapel Greens火热销售中