分类目录归档:房产买卖

【澳瑞达集团瑞敏房地产】Townhouse大放送,人生终极理想,美景花园洋房

 

在山的这边,海的那边,有一排Townhouse。他们漂亮又美丽,他们奢华又暖心。他们户型多样遍布在那,墨尔本各地,只等你来把他带回去~
澳瑞达房产,周末大放送,多款Townhouse联排别墅,圆你花园洋房梦!~
Chadstone高性价比别墅
Chadstone高性价比明智之选
总占地:超1000平方米
户型:2房或3房
位置绝佳,距离墨尔本市中心14.1公里,距南半球最大购物中心 Chadstone Shopping Centre 仅一公里,离Clayton火车站也只有两公里,是完美的现代居所,更是首次置业与二次投资的绝佳选择!

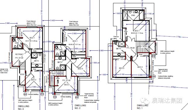
Toorak奢华学区房
Toorak低调的奢华
户型:3房或4房
楼层:三层
Toorak是财富和地位的代名词,是澳洲最著名的地区,距离墨尔本市中心仅5公里。美丽的雅拉河在您的家边涓涓流过,蓝筹街道,豪华古宅是您每天漫步相伴的风景。坐拥墨尔本最好的私立中学,尊享最原汁原味的西方教育。

Hawthorn East精致典藏
Hawthorn East富人区世界级酒店式住宅
户型:多为3房2卫1书房
亮点:室内私人电梯、前卫的车库及酒窖
Hawthorn East,距离墨尔本市中心仅7公里,聚集了众多历史风格的建筑与住宅,迄今为止均保存良好。周围名校环绕,在过去的十年中此区的房价每年以12%的速度增长,甚至在过去的五年中达到14%的增长率,是维多利亚洲的房产增幅最快的区之一。

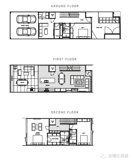
Edithvale最美海边别墅
Edithvale海边诗意生活
户型:2房,3房,4房
楼层:2层或3层
别墅区风景优美,面朝大海,背靠湿地,带您畅享诗意生活。临近墨尔本最美的菲利普湾,位于两个高尔夫俱乐部之间。沿海岸线开车半小时还可直达墨尔本著名景点Brighton Beach彩虹小屋,为您提供优化精致的现代化生活。

Mentone地产明星
Mentone精装海滨别墅
总占地:超1000平方米
楼层:两层
Mentone拥有墨尔本迷人的海岸风景线,在这里,您可以体验沿海生活风情,风景如画的海滩,颇有风情的咖啡店,顶级的高尔夫球场,辽阔的公园和绿地,健身中心,只有你想不到的,没有你找不到的。如今,靠近大海的别墅一定会成为地产业的明星,这已经不是什么秘密!现在正是您在Balcombe安家的最佳时机!

Templestowe Lower现代简约风
Templestowe Lower全新现代别墅
户型:3房或4房
亮点:临近竣工,2016年6月可入住
位于墨尔本的东北面Templestowe Lower,租金回报率高达4%。此外,该套别墅海外人士也可以购买哦,绝对是您投资置业的优质首选!其外观设计简练而精于细节、在材料上注重自然素材的利用,内部大量采用了白色,使得住宅显得更加干净、宽敞!

如您对该物业有兴趣,请致电澳瑞达集团(+61 452 523 488)
关注澳瑞达官方微信(AURAY_STAR)。我们有专业销售团队为您提供服务!

扫一扫或

长按识别二维码

 
 
 

【澳瑞达集团瑞敏房地产投资】穹顶之外的水墨丹青——Knoxfield顶级住宅,高尔夫球场环绕,等待您的青睐!

 

项目介绍
该别墅群坐落在墨尔本东南区Knoxfield,距离墨尔本市中心29公里,离尘不理城。这里沿溪而建,环境优美,零距离接触大自然。


Waterford Valley Living为一个大型豪华项目,由两个高尔夫球场环抱。即使不会玩高尔夫,也可以在后花园享受阳光。
这里公共设施完善(包含泳池、健身房、咖啡厅等多样的休闲娱乐场所)。
住户尊享
1、高尔夫球场管理服务;

2、停车服务;

3、小区管理服务;
4、公共区域维修及保养服务;
5、定制小区内网电话服务的住户可与网内住户进行免费通话;
6、定制小区内网电话服务的住户可与社区内咖啡馆及小区管理部门进行免费通话;

时尚舒适,配套齐全的健身房

健康水疗,身心灵的见健美

室内大泳池
—————————————————————–
区域介绍
Knoxfield是墨尔本东南急速发展的区域,这里有成熟的生活设施,百物汇昌,名校汇聚。
Knoxfield有很多赛道、田径场以及规模很大的自行车越野跑道。其中最出名的是Knox Track以及Gilbert Reserve。Gilbert Reserve规模较大,很多垒球及棒球比赛都在里面举行。
此外,Knoxfield还有大量健身中心,除了为当地居民提供运动及健身的场所外,很多国家级大型比赛都会在这些健身中心举行。

室内效果图

参考户型图

T4户型(4房2卫1书房2车库)


T61户型(3房2卫2车库)

周边教育

Karoo Primary School—1 km

Knox Park Primary School—2.8 km

Fairhills Secondary College—3.5 km

St Joesphs College—5.5 km

Caufield Grammar(Wheelers Hill 校区)-4km

Swinburn University (Wantirna Campus)—5.8 km

Monash University (Clayton campus)—14.4 km

周围交通

读而思

duersi

编辑完成后,将内容复制粘贴到微信后台素材管理的编辑器中即可。

Knoxfield公路发达,遍布该区的高速路(Stud Road,Ferntree Gully Road,Monash Freeway,Burwood Highway, Eastlink)形成网络,使得任何墨市主要区域都能在30分钟内到达。
另外,该区内3个火车站Boronia Train Station, Ferntree Gully Train Station及Upper Ferntree Gully Train Station距离别墅群仅十分钟车程。而该区域内的所有社会服务设施比如购物中心,医院,餐厅点对点距离都在10分钟车程之内。Anne Street沿线有753路,Stud Road沿线有901路公交,它们能将你带到Glen Waverley,Boronia,甚至Frankston 。

商业配套

出门就是高尔球夫场,毗邻会所、商场、餐厅、停车场、生态公园。除了区域内的Knox Shopping Center,周围10-15分钟车程内遍布New Harcrest Shopping Centre,Scoresby Shopping Village, Mountain Gate Shopping Center, Stud Park Shopping Center, The Glen Shopping Center。更有诸如Carribean Garden Market这样的集市和生鲜市场。The village影院,大大小小的餐厅酒吧,可以满足你下班和周末享受生活的所有要求。

当地人口分析

l         此地区72%的人群为澳洲本土人(大比例本土住房需求)

l         此地区27%的人群为20岁至39岁的人群(生产力最强人群)

l         此地区53%的业主为已婚人士(空间较大的房子需求较大)

l         Knoxfied区域家庭收入水平基本高于Knox地方政府平均水平,高收入人群所占比例较大,购买能力相对较强,这将有利于推动该区域的房产发展。

如您对该物业有兴趣,请致电澳瑞达集团(+61 452 523 488)或关注澳瑞达官方微信(AURAY_STAR)。我们有专业销售团队为您提供服务!

        扫一扫或

长按识别二维码

 
 
 

【澳瑞达集团瑞敏房地产投资】墨尔本东区好房哪里寻?Balwyn North精品公寓给你好看!

 

项目介绍
这座新概念花园公寓坐落于墨尔本顶级的高尚住宅区Balwyn North的核心地段,仅建造17户精品公寓。
 
有2房、3等多种户型可供选择,预计2016年12月竣工。
独特设计
这里带给您最靠近自然的生活享受,设计独特的园林式休闲区域遍布楼盘各处,让您尽享悠闲人生。
厨房的厨具全部选用欧洲品牌Miele(包括烤箱、洗碗机、台燥等等),更配有实木地板。
房内装修均由专业设计团队为您精心挑选高质量及富设计感的家装材料组成,将满足您对舒适与美观的双重要求。
卧室均是阳光屋,想象一下每天早上泡杯咖啡,坐在躺椅上享受阳光、蓝天、白云是多么的幸福!
户型参考
Room 101
3房2卫1书房1车位

Room 107
3房2卫1书房1车位

Balwyn North区域介绍
Balwyn North现在已成为墨尔本最受欢迎的区域之一,也是近十年来升值最快的房产区域之一。该区家庭平均收入,受教育程度都首屈一指。作为顶级居住区,Balwyn North的绿化,生活环境毋庸置疑,项目周边就有数个公园,信步便可享受高品质生活配套。
往东15分钟车程可达墨尔本CBD,往西5分钟可达著名的华人聚居区Box Hill(博士山)周边有电车、巴士等多种交通工具选择。
生活设施
便利
优雅

这里生活便利,咖啡馆,餐馆,超市等生活设施也无一不透露着高尚住宅区的优雅与奢华!
教育
作为墨尔本顶级富人区,Balwyn North的学区优势自然无可比拟。该区让无数希望小孩接受高水平西方教育的家长趋之若鹜。
Kew High School                       300m
Balwyn North Primary               2.2km
Camberwell Grammar School   2.7km
Fintona Girls’ School                 3.4km
Methodist Ladies’ College         4km
交通
出门即是火车站与电车站
Bus 200 / 207 to City / Bulleen / Doncaster
Bus 302 / 304 to City / Box Hill / Doncaster
Bus 548 to Kew & La Trobe University
 
Tram 48 to Vic Harbour Docklands
如您对该物业有兴趣,请致电澳瑞达集团(+61 452 523 488)或关注澳瑞达官方微信(AURAY_STAR)。我们有专业销售团队为您提供服务!

        扫一扫或

长按识别二维码

 
 
 

【澳瑞达集团瑞敏房地产投资】Toorak奢华豪宅——别具匠心的全新设计,享受独特与令人羡慕的优质生活!

项目介绍
该项目为10套全新的三层豪华别墅,其别君匠心的设计风格,带来了焕然一新的感觉。
“她们”位于墨尔本市著名的富人区Toorak,且拥有墨尔本最好的私立中学。周边尽是清静幽雅的公园绿地以及林林总总的餐馆和咖啡馆。
如此寂静谧清幽之处距离墨尔本市中心仅5公里,在TOORAK买房子就已经确保了房子的优越性,包括奢华的印象和高人一等的待遇。
Toorak是财富和地位的代名词,是澳洲最著名地区,有名人,蓝筹街道,豪华古宅。
 
TOORAK最引以为傲的生活品质方面就是教育。Loreto, Toorak College, St Catherine’s and St Kevin’s等著名学校都位于此。
尊贵典雅 雍容奢华
流畅时尚的外观以及合理舒适的布局将为您带来独一无二的现代感。
大方舒适的客厅紧连着由白色作为主色调的厨房和餐厅,尽显时尚与高贵。
内部设施为高档厨卫品牌专属设计,全欧洲橡木地板。为您在方便实用的同时带来尊贵奢华的享受。
在享受都市生活带来的一切便利的同时,还能确保享有静谧生活隐私不被打搅。
户型介绍
该项目多为4房、3房的户型
参考户型Unit 4 (4房3卫2车库)

参考户型Unit 6(3房3卫2车库) 

周围设施
交通
TOORAK 火车站    400米
72路电车                170米
学校
Toorak Primary School    0.37km
Loreto, Mandeville Hall    0.10km
St Kevin’s College            2.9km
St Catherine’s School      2.0km
如您对该物业有兴趣,请致电澳瑞达集团(+61 452 523 488)或关注澳瑞达官方微信(AURAY_STAR)。我们有专业销售团队为您提供服务!

        扫一扫或

长按识别二维码

【澳瑞达集团瑞敏房地产投资】迷人的海岸风景线Mentone别墅,新盘上市!

 

区域介绍

墨尔本迷人的海岸风景线Mentone,位于CBD东南面仅21公里,在这个繁华而别有度假风味的古老海滨居住区里,火车站、巴士中转站、地方政府办公楼(Kingston市)、社区医疗中心以及Kilbreda大学一应俱全,热闹的Mentone商业街拥有众多商店,更添一种强烈的社区感觉。

这里汇集了墨尔本各种精品生活方式,展现浓浓本地生活气息。

靠近大海的别墅一定会成为地产业的明星,

这已经不是什么秘密了!

现在是您在Balcombe安家的最佳时机!

项目介绍一

该项目坐落在Mentone的海滨旁,邻近是著名滨海富人区Brighton区,定位高尚。生活方便,便利的交通直达海岸线。居住在这里,您可以体验沿海生活风情,风景如画的海滩,颇有风情的咖啡店,顶级的高尔夫球场,辽阔的公园和绿地,健身中心等一应俱全。不远处有多所著名私校等等。

这些名校汇聚吸引了很多家庭到该地区来,

很多其他地区的学生每天也要乘公共交通来这求学。

项目介绍二

顶尖设计师提供了满足住户各种需求的内部设计。一个开放式的客厅,餐厅会为住户带来最大限度的光线和空间。明亮宽敞的厨房与通风的户外生活空间相连,室内外空气自然相通,超现代的装饰风格彰显着悠闲而现代的Mentone生活。内部装修以奢华舒适为主,同时结合创新的元素。高级地毯,实木地板,全套不锈钢设备,分体空调等,您只需要拎包入住就好。

这里不仅是一栋别墅,更是一个你可以称之为家的地方。

推荐户型参考:两房两卫一书房双车库

教育设施
Mentone拥有丰富的教育资源:
Mentone Girls Secondary College    0.38km
Kibreda College                                0.72km
Mentone Primary School                  0.84km
 St Patrick’s Primary School             1.03km

 Mentone Girls’ Grammar School     1.12km

Mentone的购物中心:

Westfield Southland
Moorabbin home maker center
Moorabbin DFO 

Chadstone Shopping Centre(南半球最大的购物中心)

市场供需关系
买 
$930,000 
 $480 每周

在Mentone生活的居民当中,成熟独立人士占的比例最大,

其次是年长夫婦和家庭,然后是稳定家庭。

还在等什么?买!

请关注澳瑞达官方微信(AURAY_STAR),我们实时提供最新房产、留学移民、澳洲旅游等资讯及信息!

   扫一扫或

   长按识别二维码

 
 
 

【澳瑞达集团瑞敏房地产投资】Templestowe Lower新上市别墅——临近竣工,闹中取静!海外人士均可购买!

 

项目介绍
该项目为3套全新的现代别墅,位于墨尔本的东北面Templestowe Lower。 外观设计简练而精于细节、在材料上注重自然素材的利用。内部大量采用了白色,使得住宅更加干净、宽敞!
现场实拍图
居住面积宽敞,室内配备优质设施,如设计精湛的浴室,现代化的开放式厨房,私家车库和风景秀丽的花园等。
三屋的主卧内均带有浴室与步入式衣橱,一层拥有独立的洗衣房。
该住宅已临近竣工,2016年6月即可入住。户型多样,有3房、4房供可挑选!
价格实惠,租金回报率高达4%,绝对是优质的投资物业,海外人士可以购买哦。
有兴趣的朋友可以去现场看房哦!
澳瑞达预约电话:
03 8394 4694或+61 452 523 488

区域介绍
Templestowe Lower 位于墨尔本市中心17公里的东北面,归属Manningham市。 
 
Yarra River河流经Templestowe Lower北部边界。紧邻Doncaster East,Donvale,Boxhill North以及Balwyn North。 
 
靠近人气最旺的购物中心(Westfield Doncaster Shopping Centre)。
附近两个公园,分别为Birrarung Park and Finns Reserve。这里有漂亮的绿化带,可徒步,游泳,划船等。
 
户型介绍
Unit 1:(3房3卫+1书房+1车库)
Unit 2:(3房3卫+1车库)
Unit 3:(3房3卫+1车库)
参考户型图(一层)

参考户型图(二层)

这里地段优越,方便到达高速公路(M1-Eastern Freeway)。
周围学校
Bulleen Heights School                         0.73 km
Templestowe Valley Primary School     1.01km
St Clement of Rome School                  1.26 km
Templestowe Heights Primary School   1.74 km
St Kevin’s School                                    2.10 km
如您对该物业有兴趣,请致电澳瑞达集团(+61 452 523 488)或关注澳瑞达官方微信(AURAY_STAR)。我们有专业销售团队为您提供服务!
澳瑞达销售顾问:Jenny Chen
座机:(03)8394 4694
手机:+61 426 814 558
微信:dong072267

        扫一扫或

长按识别二维码

 
 

微信扫一扫
关注该公众号

【澳瑞达集团资讯信息】重磅消息:第七期房产销售课程又要开班啦,欢迎大家踊跃报名!

 

澳洲房地产投资热持续延烧,房产中介活动也愈加活跃,并且想从事房地产行业的人也越来越多。但是,众所周知,房地产业在澳洲是规范严谨的一个行业。所有的从业人员都必须有注册职业资格 (Registration)。必须要知道的是,仅有职业资格Registration是不能独立买卖房子的,也不能单独收取卖房佣金,可以独立从事房产买卖的必须是有Full License (房产牌照) 的中介或公司。
如何成为房产中介?
在维州,您可以先从就读房产销售课程Agent’s Representative Course开始,并一边在拥有房产牌照的中介公司工作,累积工作经验满一年之后,便可向商业执照管理机构 (BLA) 申请Agent’s Representative License。而取得Full License (牌照) 必须完成 房产买卖四级证书 (Certificate IV in Property services),才可以开始独立从事房产买卖。
我们澳瑞达同时提供房产销售课程(Agent’s Representative Course)与房产买卖四级证书 (Certificate IV in Property services Real Estate)课程。
相信大家对于房产销售课程Agent’s Representative Course已经非常熟悉了,澳瑞达已经成功举办六期了,而最新一期也将于2016年2月6日开班,为期一天,让您轻松拿证,立刻上岗!
此外,我们澳瑞达将于2016年2月7日开授第一期房产买卖四级证书 (Certificate IV in Property services Real Estate)课程,为期7个月,让您顺利拿牌,开房产中介绝不是梦!

由于是小班教学(10 人左右,更是让您享受VIP 待遇),我们为您打造最精品的课程,西人资深房地产行业讲师为您讲解房地产知识和销售技巧。让您全面了解房地产中介这个行业里的众多细节和法律法规。如果您想来感受一下房地产行业的气氛,以及来体验一下我们澳瑞达轻松、亲切却勤奋的文化,请快快抓紧联系我们抢占最新一期的位置吧!!
课程介绍
名称:
1. 初级房产销售(Agent’s Representative Course)
2. 房产买卖四级证书Certificate IV in Property Service (Real Estate)

房产买卖四级证书Certificate IV in Property Service (Real Estate)一共24门课程,其中包括3门初级房产销售(Agent’s Representative Course)的课程。如果已经完成3门初级课程,可获得免除。
开课时间:
初级房产销售:2016年2月6日,早上9点至5点
房产买卖四级证书:2016年2月7日起,为期7个月
课程内容:
初级房产销售课程:
* 房地产市场分析及概况
* 房屋租赁的法律法规
* 房屋销售流程和法律法规
房产买卖四级证书课程:
1.解读房产中介的法律法规
2.如何减少房产中介和消费者的潜在风险
3.房产中介与客户如何建立良好的关系
4.如何应对房产市场中的竞争与冲突
5. 保持业务记录
6.如何对小型公司进行财政管理
7.如何建立与管理中介的信贷账户
8.房屋租赁
9.房屋租赁清单
10.监管租赁协议
11.房地产市场的租赁
12.法庭出席
13.对被托管物业实施维护管理
14.如何充当买方代理人
15.物业评估
16.执行拍卖
17.房屋销售清单
18.房地产市场的销售
19.准备与提交地产报告
20.准备拍卖与完善销售
21.以私人条约进行房屋买卖与终结
课程费用:
初级房产销售课程:
只需$698(包括培训费及书本费)
 
房产买卖四级证书课程:
请致电0452 523 488或发邮件至admin@auraystar.com.au咨询
课后服务:
我们为优秀学员提供地产销售的工作平台,专业的岗前培训以及丰厚的佣金$$$$$!!绝对的物超所值!

扫一扫或

长按识别二维码

 

 

【澳瑞达集团瑞敏房地产】Carlton低密度公寓,远离CBD尘嚣却不失繁华,近墨大!

你想享受城市生活的便利,又希望拥有自己片刻的宁静吗?
你想用更低的房价,撬动更高的租金,拥有一套完美的投资物吗?
请选择它吧!
优质地段
公寓位于距离墨尔本市中心北面2公里的Carlton区。这里紧挨CBD却不同于生活在CBD的嘈杂拥挤,是成熟的大学周边社区。其中包括墨尔本大学等一系列传统建筑,当代风格建筑群等。
靠近著名的墨尔本皇家花园及动物公园,巴士站、火车站就在附近,生活便利,交通方便。

Carlton公园和皇家公园等大量绿化不仅为居民提供日常休闲的场所,Carlton也因此成为墨尔本最宜居的区域。

项目介绍
该项目一共为8层是典型的低密度公寓,户型多为一房、两房、三房户型。
整个建筑外墙采用现代风格,包括精巧的立方体排列外观设计创造一种轻松现代的生活风味。走进大楼,呈现在眼前的是一个现代的大堂。包括光滑镜面的木质表面和金属风格的墙面,现代大方。这里是可以会客,等待的区域。此外,安全电梯和整个大楼安全系统给您带来无忧的生活享受。
该建筑的宗旨是根据每个环境的特色打造适合当地的最佳建筑设计风格。
参考户型:一房一卫一车
周围学校

墨尔本大学 900米
皇家理工大学 1.9公里
Carlton primary school 350米
Carlton North primary school 400米
休闲娱乐

Melbourne Museum 1.4km
Royal Park 2km
Carlton Gardens 750m
Curtain Square 650m
Melbourne Zoo 2.9km
Lincoln Square 1.8km
Flagstaff Gardens 3km
Carlton Library 550m
State Library of Victoria 2.8km
购物中心

Rathdowne Village 650m
Melbourne Shopping Centre 2.9km
Queen Victoria Market 2.6km
 交通

Parliament Railway Station 2.2km
Melbourne Central Station 2.9km
 
公交车:250, 251, 253, 207, 201, 200
电车: 59, 55, 1, 89, 112, 96, 19, 109

扫一扫或

长按识别二维码

【澳瑞达集团瑞敏房地产】人类史上最长公寓推荐文章,膜拜吧!!!

墨尔本CBD公寓推荐

CBD顶级公寓,享受城市花园美景——Conservatory!
Conservatory雄踞墨尔本CBD前排尊贵席位,同时拥有奢华迷人的Carlton花园美景和墨尔本市中心以北便利的黄金地段——是得天独厚,难得一见的地标性建筑。其毗邻各大知名高等学府,交通设施,美食及购物中心,商务办公会所和著名公园绿地,更完美结合花园的静谧与城市的便利,让您尽享都市花园生活。 继续阅读【澳瑞达集团瑞敏房地产】人类史上最长公寓推荐文章,膜拜吧!!!

【澳瑞达集团瑞敏房地产】新盘上市,不是好房我不能这么拼命!!!

项目介绍
该项目为4套全新别墅,坐落于东南区Hugesdale,户型多为3房2.5卫2车库。即买即住,让你在新房度过一个愉快又幸福的假期!!!

继续阅读【澳瑞达集团瑞敏房地产】新盘上市,不是好房我不能这么拼命!!!