【澳瑞达集团瑞敏房地产投资】墨尔本最美海边别墅,Edithvale联排别墅给您奢华生活享受!

 

项目介绍

该项目为20套海边联排别墅,位于墨尔本南部的Edithvale区,由澳洲屡获殊荣的Seidler Homes公司精心打造。

距墨尔本市区40分钟车程,多路公交、火车可达,交通便利,环境优美。


户型推荐
户型多样,有2房,3房,4房可供挑选,充分利用其豪华的开放空间,打造室内和室外生活和娱乐双重空间,为您提供优化精致的现代化生活方式。
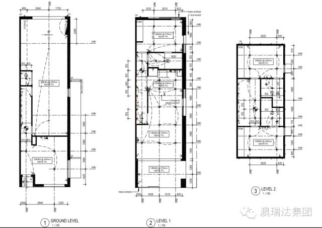
Lot 21- Type D3   三层楼
3房2卫2车库 
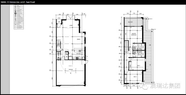
Lot 47- Type F2   两层楼 
3房2卫2车库
周边设施
别墅区风景优美,临近墨尔本最美的菲利普湾,位于两个高尔夫俱乐部之间,面朝大海,背靠湿地。沿海岸线开车半小时还可直达墨尔本著名景点Brighton Beach彩虹小屋。

公共交通
902路公交            320m
858路公交            100m
Edithvale火车站   1.2km

教学设施
Edithvale Primary School                    700m
Aspendale Gardens Primary School   1.8km
Haileybury college                               6.6km

如您对该物业有兴趣,请致电澳瑞达集团(+61 452 523 488)或关注澳瑞达官方微信(AURAY_STAR)。我们有专业销售团队为您提供服务!

澳瑞达销售投资顾问:Philip Wang

座机:(03)8394 4694 

手机:+61 435 196 643

微信:philiphui_1984

扫一扫或

长按识别二维码

 
 
 


发表评论

电子邮件地址不会被公开。 必填项已用*标注