澳洲移民一直备受关注,由于技术移民门槛越来越高,人们纷纷走向了雇主担保类别的移民方式。 据《澳大利亚人报》报道,澳大利亚雇主担保类别签证申请数在一年内上涨了15%,其中半数申请人来自印度、英国和中国。可想而知,人们对移民澳洲的热度仍然是有增无减啊! 下面让小编为大家详细的介绍一下雇主担保的类别及移民方式。

雇主担保类别,即186、187移民签证及457工作签证。其中186、187移民签证是澳大利亚技术类移民类别中第一优先处理的签证。根据澳洲移民局的规定,澳洲雇主担保签证是面向澳大利亚境外技术工或者在澳大利亚居住或工作的有技能的临时居民的一种签证,其中包括三种形式,“雇主担保移民签证(186类)”、“偏远地区雇主担保移民签证(187类)”以及“雇主担保工作签证(457类)”。 继续阅读【澳瑞达集团资讯信息】移民新出路!雇主担保移民——既能获得一份好工作,又可以移民,一箭双雕!何乐而不为呢! →
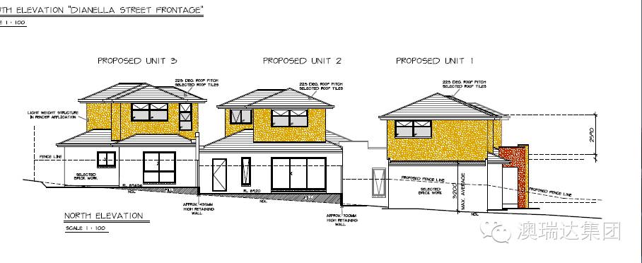
“富森公馆”位于墨尔本知名内城沿海湾向东南延伸的主要干道–St Kilda Road上。这条路树木林立,有百年多的发展建设史,是文化,休闲娱乐,购物,餐饮的黄金地带。附近区域大多为墨尔本传统的富人区,比如,South Melbourne,Albert Park,South Yarra,Toorak等。该项目可远眺飞利浦海湾,近观Albert Park 湖景,拥有墨尔本最独特醉人的美景,虽然在墨尔本市中心附近但生活环境又贴近大自然。小编插播:如果你喜欢高大上选“富森公馆”绝对没错,如果你想要用于投资,那么St. Kilda“沙尔斯森林时代庄园”公寓更适合你!


该公寓拥有高质量的装修和采光,2.85的挑高设计,居住舒适,楼下交通便利,周边教育资源丰富。




交通:
楼下有多路电车(3、5、6、16、64、67、72路等)可直达CBD和墨尔本大学

学校:
Melbourne Girls Grammar 和 高大上的Wesley College 等著名私校

公园:
Fawkner Park 福克纳公园
Albert Park 艾伯特湖景公园
Royal Botanic Garden 皇家植物园

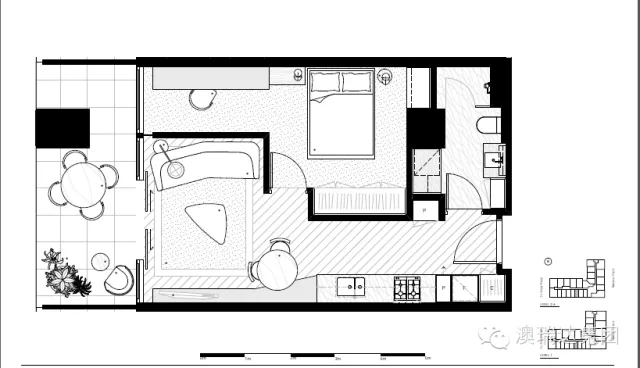
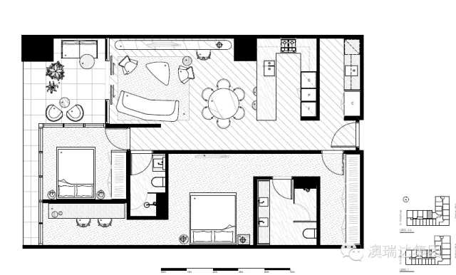
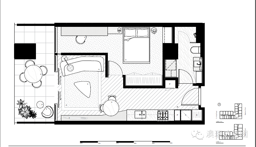
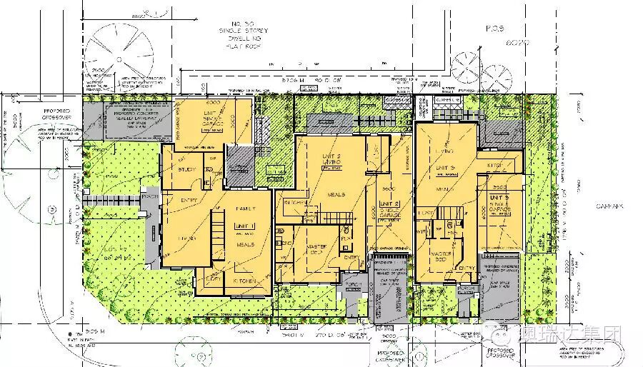
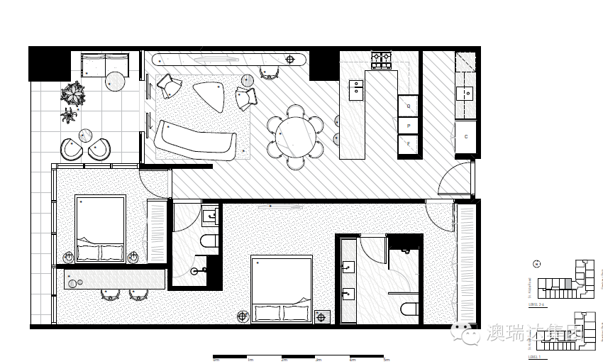
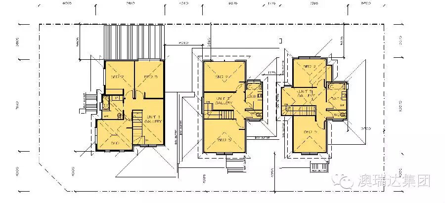
户型参考
一房一卫:

两房一卫:

三房两卫:

小编提示:
心动不如行动,赶快预订吧!想了解更多关于此房的资讯就请快快联系我们吧!晚了好户型就被抢走了。
联系电话:+ 61 3 8394 4694
+ 61 452 523 488
也可以发email 给我们哦!
邮箱:min@auraystar.com.au



小编提醒:
想了解更多关于此房的资讯就请快快联系我们吧!要快哦!晚了就抢不到了!
我们的联系方式:
电话:
+61 452 523 488
Email:
min@auraystar.com.au


如果您对房产有兴趣,欢迎随时联系我们!
我们的联系方式:
电话:
+61 452 523 488
Email:
min@auraystar.com.au


澳大利亚留学、移民、房地产、生意买卖等一条龙中介服务